發表時間: 2026-04-01 15:34:06
作者: 石油化工設備維護與檢修網
瀏覽: 160
近日消息,天津高新區官網發布《關于中海油能源發展股份有限公司海油發展渤龍湖科研中試基地建設項目(一期)環境影響評價受理信息公示》,項目重點情況概覽。


01丨項目由來
中海油能源發展股份有限公司(以下簡稱建設單位)是中國海洋石油集團有限公司(以下稱集團公司)的下屬子公司,聚焦海上、陸上油氣生產領域,致力于發展成為以提高油氣田采收率、裝備制造與運維、FPSO一體化服務等為主導產業的有中國特色的世界一流能源技術服務公司。建設單位為油氣公司提供包括工程技術服務、裝備設計制造與運維服務、油氣田生產一體化服務等在內的全方位技術服務,并聚焦油氣田生產階段,從提高油田采收率、監督監理、油田作業支持、非常規油氣一體化服務、設備設施運維一體化服務、FPSO生產運營服務等多個方面為海上和陸上油氣公司的生產作業提供技術服務和支持保障。
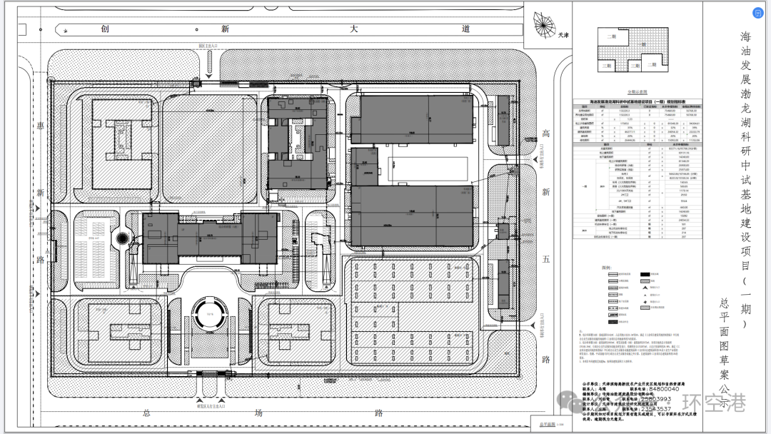
根據海油發展“十四五”京津冀區域發展規劃,依托區域產業資源及自貿區政策配套優勢,打造渤海地區“一中心、四基地”總體布局,結合渤海礦區現狀及優化升級方案,建設公司技術研發、成果轉化一體化科研中試基地,為此,建設單位擬在天津濱海高新技術產業開發區渤龍湖科技園創新大道南側、高新五路西側地塊建設“海油發展渤龍湖科研中試基地建設項目(一期)”。
中試基地功能定位為油氣開采流程原型試驗中試基地,中試試驗均為物理試驗,配套建設科研、實驗、辦公等設施,項目涉及的所有實驗均為小試規模,主要進行鉆完修技術服務、提高采收率技術服務、油田研究技術服務、油田生產一體化服務等方向的研究,用于滿足稠油熱采、低滲開發、高溫高壓、深水深層等難開發重點領域勘探開發關鍵核心技術研究。
02丨建設地點
建設項目擬建址位于天津濱海高新技術產業開發區渤龍湖科技園創新大道南側、高新五路西側;廠區東側為高新五路,西側為惠新路、天津壹科環保科技有限公司,南側為規劃路,北側為創新大道。
03丨建設內容
本項目主體工程內容為新建研發實驗樓(B座)1座、車間(腐蝕防護評價實驗室)1座、綜合科研樓(A 座)1座、車間3座(包括車間Ⅰ、車間Ⅱ、車間Ⅲ)。項目占地面積75460㎡,總建筑面積83371.16㎡。
04丨投資總額
78586萬元
05丨計劃工期
15個月
06丨勞動定員
1)項目定員:本項目定員996人。
2)工作制度:每天工作8小時,年工作日250天。本項目大部分實驗及中試試驗設備只在晝間運行,部分實驗及試驗設備涉及夜間運行。
來源:超級石化